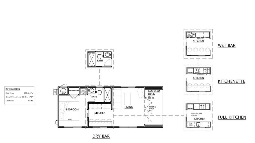
Crystal Mountain Home About Homes Saunas & Spas Commercial Contact Home About Homes Saunas & Spas Commercial Contact Crystal Mountain Model Cozy Cabin With Style This popular model has it all. It is easy to move, has a roof made for snow and rain and an amazingly cozy feel. Cuddle up and watch the sunset in this amazing home.Starting at $125,000 Enviting Common Area Traditional front doors also available. Convenient Flooplan Kitchen Area Built-in bar with window seating shown here. Downstairs Bedroom 1 Bed/1 Bath + Optional Loft 397 Sq Ft Overall Dimensions 14' x 32" Floor Plan